传统低合金钢高温氧化行为的新认识
" 高温氧化一直被认为是导致金属材料环境降解的关键机制之一。钢..."
钢结构建筑高强螺栓安装及防腐处理探讨
"钢结构因其自重轻、施工速度快、环保等优点,在工业和民用建筑中得..."
油浸式变压器铜绕组抗硫腐蚀的研究进展
"油浸式电力设备是输配电系统中最常见的设备之一,其安全可靠运行是..."
油浸式变压器铜绕组抗硫腐蚀的研究进展
"油浸式电力设备是输配电系统中最常见的设备之一,其安全可靠运行是..."
中国科学院海洋研究所田惠文团队JMST封面:聚焦深海油气设施,研发多功能一体化智能控释新型防护材料
"针对深海油气管道高温、高酸、高盐极端腐蚀环境中化学腐蚀、碳酸..."
高温时效对GH4169镍基高温合金性能的影响
"目前关于GH4169镍基高温合金时效的研究,主要集中在时效温度对析出..."
东南大学金鸣教授、刘加平院士,三峡集团李文伟,河海大学赵海涛中科院一区TOP期刊CCC:混凝土界面过渡区(ITZ)中的热疲劳挑战
"中国高原地区的混凝土结构因长期大昼夜温差而严重受热疲劳劣化。..."
《Corrosion Science》:AlCrFeNi 合金的增材制造——成分、成形性与铅铋共晶环境下耐蚀性的关联研究|| 中材检测助攻!
"铅冷快堆(LFRs)是第四代核能系统核心技术,铅铋共晶(LBE)作为冷却液导..."
北京科技大学 & 荷兰代尔夫特理工大学 Nat. Commun.:跨尺度计算引导强氢俘获析出相破解铝合金氢脆
"本研究面向氢能利用与工程结构安全中普遍存在的氢脆失效难题,针对..."
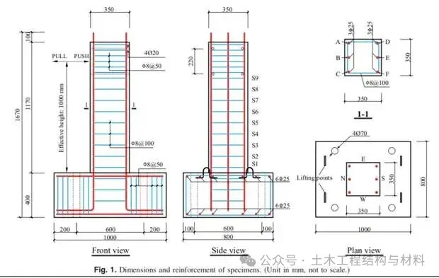
《J. Struct. Eng.》同济大学张伟平教授、顾祥林教授等:钢筋混凝土柱腐蚀诱导失效模式转变及地震行为劣化实验研究
"钢筋混凝土(RC)结构在长期服役过程中,钢筋锈蚀是导致其性能退化的主..."
四川轻化工大学李轩教授:抗氧化烧蚀超高温陶瓷涂层研究进展
"现代航空航天器的快速发展对其高温结构材料的性能要求日趋提高,超..."
硼不锈钢乏燃料贮存格架老化监督与管理
"在核电厂换料大修期间,部分乏燃料需转移至厂内乏燃料水池的贮存格..."
DD5合金表面激光熔化沉积CoMoCrSi/Y2O3复合涂层的微观组织与力学性能
"采用激光熔化沉积技术在DD5单晶合金表面制备CoMoCrSi合金涂层和C..."
广州特种设备检测研究院张双红高工:金属埋地管道外腐蚀及外防护涂层研究进展
"金属埋地管道外腐蚀受土壤环境条件、微生物活动、杂散电流干扰等..."
Corrosion Science|机理揭秘!低合金 Mg-Gd-Zn-Zr 合金实现超低腐蚀速率
"耐腐蚀性差是普通镁合金的固有弱点,因此,在保持机械性能的同时提高..."
核电站安全壳的“隐形杀手”:COMSOL模拟揭示钢衬里外侧腐蚀之谜
"核电站安全壳是防止核泄漏的第三道安全屏障,其安全性至关重要。然..."
核用耐铅铋腐蚀涂层的研究进展
"铅铋共晶合金(LBE)凭借其高沸点、高导热性及优良安全性能,已成为..."
电化学工作站操作指南
"本文介绍了电化学工作站的分类、精度及其作为测量工具的核心地位..."
东北大学徐大可教授团队:微生物加速AA7075铝合金在模拟燃油–水环境的腐蚀行为与机理
"航空运输的蓬勃发展使全球互联日益紧密,对飞行器的飞行安全也提出..."
硼不锈钢乏燃料贮存格架老化监督与管理
"介绍了核电厂硼不锈钢乏燃料贮存格架材料老化管理大纲的构建、老..."
建筑工程用铝型材耐蚀疏水膜制备工艺及其性能
"为增强建筑工程用铝合金结构件的耐蚀性,在其表面通过磷酸盐化学转..."
X80钢焊接热影响区的失效机理
"基于现场常用X80钢,截取其母材和热影响区部分开展显微组织观察、..."
S22053不锈钢在3.5%NaCl溶液中的腐蚀行为
"运用极化曲线、Mott-Schottky曲线及电化学阻抗谱测试技术研究了S..."
高温高压循环水中表面涂层对SiCf/SiC复合材料腐蚀行为的影响
"通过化学气相沉积法(CVD)在SiCf/SiC复合材料表面制备了SiC涂层;然后..."
B位Ti4+掺杂对Gd2(Zr0.2Ce0.3)2O7陶瓷材料抗熔盐腐蚀性能的影响
"采用固相反应法制备了Gd2(Zr0.7Ce0.3-xTix)2O7(x=0~0.3)陶瓷材料,利用..."
























